屋面防水工程质量通病及防治
1.1 卷材防水层开裂
1.1.1原因分析
建筑设计不合理;
大型板端变形,找平层开裂;
屋面刚度不够和防水材料不能适应基层变形及振动影响;
基层楼板空间空隙变形过大;建筑物不均匀沉降。
防水层老化等。
1.1.2 防治措施
改进结构设计;
在大型板接缝处做缓冲层;
严格控制原材料和铺设质量;
改善沥青胶配合比,控制耐热度和提高韧性;保证找平层的强度和厚度找平层宜设分格缝,并嵌填密封材料,分格缝应留设在板缝处,其纵横缝的最大间距应满足:当是水泥砂浆或细石混凝土找平层时≤ 6m,当是沥青砂浆找平层时≤ 4m。
1.2 屋面鼓泡
1.2.1 原因分析
基层、保温层内或卷材与基层、卷材与卷材之间,部分粘贴不实的地方窝有潮湿空气或水分,铺贴卷材时又没有采取排气措施;
受外界热源影响潮湿空气体积产生膨胀,将卷材鼓起。
1.2.2 防治措施
严格控制基层含水率,采用相当于当地湿度的平衡含水率,一般在8% ~ 15%;
避免在雨、雾、霜及5级风以上天气时施工,选择适宜的施工环境气温;
防止卷材受潮;
保证基层平整,卷材铺贴涂油均匀,封边严密,不能有漏涂,各层卷材粘贴密实;
潮湿基层上铺设卷材,在防水层内留排气孔通风。
1.3 卷材渗漏
1.3.1 原因分析
屋面工程所采用的防水、保温隔热材料没有产品合格证书和性能检测报告,材料的品种、规格、性能等不符合现行国家产品标准和设计要求;
卷材接缝处或檐口、出屋面管道的沥青胶未封严密实;
卷材铺贴时搭接宽度不够;
因屋面和天沟坡度不当而积水;
雨水管道堵塞;
立面部分卷材未固定牢,卷材翘边张口。
1.3.2 防治措施
对屋面上使用的防水、保温隔热材料进场后,应按规范要求进行抽样复验;
卷材搭接宽度应符合规范设计要求;
找好屋面和天沟坡度;
找平层的排水应符合规范规定和设计要求,平屋面采用结构找坡≥ 3%,采用材料找坡宜为≥ 2%,天沟、檐沟纵向找坡≥ 1%, 沟底水落差不得超过200mm;
立墙及檐口卷材应埋入墙的凹槽内,用浸泡过沥青的防腐木条或金属压条钉牢封严,固定钉的最大钉距≤ 900mm,并用密封材料嵌填封严;
1.4 尿墙
1.4.1 原因分析
檐口细部处理不当,有的收头敞开着口,有的泛水高度不够,立面未固定牢,未作镀锌铁皮泛水;
缺乏维护,雨水管积灰堵塞、天沟积水。
1.4.2 防治措施
对屋面雨水口,如墙、交形缝、檐口、天窗、烟囱和通过屋面的管道等细部处理,做到构造合理,节点严密,在与基层的交接处和转角处,找平层均应做成圆弧形,使用不同的防水卷材,找平层应做不同的圆弧半径。
沥青防水卷材的圆弧半径应在100~150mm,高聚物改性沥青防水卷材的圆弧半径应50mm,合成高分子防水卷材的圆弧半径应在20mm。
1.5 变形缝漏水
1.5.1 原因分析
变形缝所用材料和构造形式选择不当,不能适应结构变形;
止水片连接处及预埋铁件处混凝土未捣固密实;变形缝高度不够。
1.5.2 防治措施
选用变形能力强、构造形式简单的止水带做变形材料,加强连接处混凝土捣实,保持位置正确;
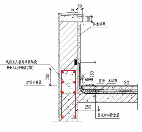
变形缝的泛水高度≥250mm,防水层应铺贴到变形缝两侧砌体的上部;
变形缝内应填充沥青麻丝或聚苯乙烯泡沫塑料,上部填放衬垫材料,并用卷材封盖;
变形缝应加扣混凝土或镀锌铁皮顶盖;
混凝土顶盖板的接缝应用密封材料嵌填,接缝应整齐,顶盖做坡度。
1.6 屋面优化设计质量问题防治
1.7 屋面构件施工质量问题防治
1.8 屋面安装预埋质量问题防治
1.9 出屋面门洞质量问题防治
地下室防水混凝土工程
2.1 混凝土施工缝渗漏
2.1.1现象及原因分析
施工缝留的位置不当,如把施工缝留在混凝土底板上,或在墙上留垂直施工缝。
在支模和绑钢筋的过程中,锯末、铁钉等杂物掉入缝内没有及时清除,浇灌上层混凝土后,在新旧混凝土间形成夹层。
在浇灌上层混凝土时,没有先在施工缝处铺一层水泥浆或水泥砂浆,上、下层混凝土不能牢固粘结。
钢筋过密,内外模板距离狭窄,混凝土浇捣困难,施工质量不易保证。
2.1.2 防治措施
施工缝是防水混凝土工程中的薄弱部位,应尽量不留或少留。底板混凝土应连续浇灌,不得留施工缝。底板与墙体间如必须留施工缝时,应留在墙体上,并且要高出底板上表面不少于200毫米。墙体上不得留垂直施工缝,必须留时,应与变形缝统一起来。
认真做好施工缝的处理,使上、下两层混凝土之间粘结密实,以阻隔地下水的渗漏。
认真清理施工缝处,凿掉表面上的浮粒和杂物,用钢丝刷或剁斧将老混凝土面打毛,并用水冲刷干净。
在施工缝处先浇一层与混凝土灰砂比相同的水泥砂浆,再浇灌上层混凝土。
加强施工缝处的混凝土振捣,保证捣固密实。
施工缝不宜采用平口缝,应尽量采用不同形式的企口缝。重要工程必要时可采取两道防线,即以刚性处理和柔性处理相结合的形式,加固施工缝。a)凸形缝;b)凹形缝;c)V形缝;d)阶梯形缝;
设计钢筋布置和墙体厚度时,应考虑施工的方便,以利于保证施工质量。
2.2 防水层施工缝漏水
2.2.1 现象及原因分析
接缝处阴湿,或出现点状或线状渗漏。
防水层留槎混乱,层次不清,无法分层搭接,使得素灰层不连续;
没有按要求留槎,如留成直槎等;
接槎时,往往由于新槎收缩,产生微裂而造成渗漏水。
2.2.2 防治措施
防水层的施工缝需留斜坡阶梯形槎,接槎要依照层次顺序分层进行,留槎离阴角不小于200mm,
根据漏水量大小,以漏点为圆心剔成直径为10~30毫米、深20~50毫米的圆槽,槽壁必须与基面垂直,剔完后用水将槽冲洗干净,随即用水泥胶浆捻成与槽直径接近的锥形体向槽壁四周挤压严密,使胶浆与槽壁紧密粘合,检查无渗漏后,再抹上防水面层。
2.3 卷材防水层
2.3.1 空鼓
(1) 原因分析
基层潮湿,沥青胶结材料与基层粘结不良。
由于人员走动或其它工序的影响,找平层表面被泥水沾污,与基层粘结不良。
立墙卷材的铺贴,操作比较困难,热作业容易造成铺贴不实不严。
(2) 防治措施
无论采用外贴法或内贴法施工,都应把地下水位降至垫层以下不少于300毫米。
垫层上应抹1﹕2.5水泥砂浆找平层,以创造良好的基层表面,同时防止由于毛细水上升造成基层潮湿。
保持找平层表面干燥洁净。
铺贴卷材前一、二天,喷或刷1~2道冷底子油,以保证卷材与基层表面粘结。
铺贴卷材时气温不宜低于5℃。冬季施工应采取保温措施,以确保胶结材料的适宜温度。
雨季施工应有防雨措施,或错开雨天施工。
2.3.2 卷材转角部位后期渗漏
(1) 原因分析
在转角部位,卷材未能按转角轮廓铺贴严实,后浇或后砌主体结构时此处卷材遭破坏。
所选用的卷材韧性较差,较角处操作不便,沥青胶结料温度过高或过低,不能确保转角处卷材铺贴严密。
转角处未按照有关要求增设卷材附加层。
(2) 防治措施
基层转角处应做成圆弧形或钝角。
转角部位应尽量选用强度高、延伸率大、韧性好的无胎油毡或沥青玻璃布油毡。
沥青胶结料的温度应严格按有关要求控制。
涂刷厚度应力求均匀一致,各层卷材均要铺贴牢固,并增设卷材附加层。附加层一般可用两层同样的卷材或一层无胎油毡(或沥青玻璃布油毡),按照转角处形状粘结紧密。
当转角部位出现粘贴不牢、不实等现象时,应将该处卷材撕开,灌入沥青胶,用喷灯烘烤后,逐层补好。
2.3.3 地下室质量问题防治




外墙渗漏
3.1外墙渗漏原因分析
3.1.1 设计方面
国内建筑领域在外墙防渗漏设计方面存在严重的不足。
设计人员轻视细部大样设计,如外墙预埋管件、门窗、穿墙管、鹰嘴、滴水槽、窗台坡度、幕墙与墙体间的接缝等;
外墙装修设计缺少防水功能设定,如建筑飘窗、空调板根部未设防水或防水坡度太小导致积水严重,从而产生渗漏现象。
3.1.2 材料方面
墙体材料。砌体与钢筋混凝土膨胀系数相差较大,在温差作用下,砌体与钢筋混凝土梁柱交界处就会容易产生裂缝,引起渗漏。
外墙装饰材料。如今工程多采用的外墙饰面砖是不透水性材料,其粘结材料一般为水泥浆,灰浆的不饱满或勾缝水泥浆也易形成空腔,形成细小的裂缝,造成渗漏。
外墙抹灰开裂。
外墙保温材料(板、砂浆、网、钉等)质量差,易导致开裂漏水。
铝合金门窗。铝合金门窗材质不合格、加工制作质量差,密封胶不合格,容易老化、开裂,形成漏水。
3.1.3 施工方面
墙体砌筑不规范导致渗漏。
混凝土梁柱与砖墙结合处渗水。
外墙面砖施工不当造成的渗水。
门窗制作安装不规范导致的渗漏。
外墙预留洞口密封不当导致渗漏。
外墙保温板施工不当导致渗漏。
3.2 防治措施
3.2.1 设计方面
外墙的设计要求具有防水概念和功能设定,并在设计图纸上明确分隔缝留置。
对外墙涂料饰面要进行打底砂浆和涂料层的抗裂措施。
工程要有伸缩缝、变形缝的设计及其防水细部要针对施工实际的可行性确定等。
设计选材合理,选用防水材料可靠。
3.2.2 材料方面
选用经实践证明具有良好防渗性能的外墙材料。
严谨使用不合格材料。
3.2.3 施工方面
墙体砌筑控制。
外墙饰面材料施工控制。
门窗制作安装控制。
外墙预留孔洞密封控制。
外墙保温施工控制。
二次装修施工控制。

外门窗渗漏
4.1 原因分析
4.1.1 设计方面
设计文件不齐全或未经结构设计,造成锁点不足或铝门窗材料结构强度和挠度达不到要求,导致在正常风压下塑性变形,拉裂或损坏等而产生雨水渗漏;
对迎风面、雨水冲刷面的防渗、防漏考虑不足,过分突出采光及通风需要;
型材选用上简单的套用,导致型材不配套或装配松动或断面挡水高度不足引起的直接漏水;
外观上过分注重线条装饰,造成门窗型材接头、转角过多而导致的拼缝封堵缺陷。
4.1.2 施工方面
铝门窗在加工制作过程中达不到质量要求;
铝门窗与洞口墙体连结部位填塞密封不当。
4.2 防治措施
4.2.1 准备阶段
结构设计上根据工程特点按规范进行严格的计算和设计;
根据工程特点进行样板窗施工,做好前期预防、过程控制、阶段水密测试;
批量生产前,据实进行物理性能检测,以确定门窗是否达到设计要求与性能指标;
尽量选用同一厂家,同一系列门窗型材,不要简单拼凑,尽量选用挡水断面高的窗框,增加门窗的密封道次和增加门窗的锁点。
4.2.2 制作安装阶段
门窗与洞口墙体周边的标准间隙应控制在25mm-40mm之间,其最大尺寸应不超过50mm,最小不小于20mm;
门窗边框四周的外墙面200mm范围内,用防水砂浆抹面并增涂二道防水涂料以减少雨水渗漏的机会;
迎风面或雨水冲刷面为阻止雨水渗过门窗与墙体之间的充填材料,适当考虑止水挡板或其他防水涂膜,增加抗渗性能;
窗框交接处要留有注胶槽,宽度5-8mm,嵌注密封材料时,应注意清除浮灰、砂浆等,使密封材料与窗框、墙体粘结牢固。
调整垫块禁止残留于门窗框内,拆除后要及时进行二次填充密实,填充注意与基体的可靠粘结,除清除残渣外应基体湿润;
室外窗台应低于室内窗台板20mm为宜,并设置顺水坡,雨水排放畅通,避免积水渗透。铝门窗与外墙要有一定的距离,避免雨水直接冲刷;
门窗连接件的材质、规格,连接方法应符合当地《铝合金门窗技术规程》要求,及时用砼或砂浆封锚,避免在风荷载作用下产生移动而使密封材料产生裂缝。
4.3 外窗防水设计优化

卫生间渗漏
5.1 原因分析
5.1.1 设计方面
卫生间地面及四周没有采取防水措施;
穿板管道要求不明确。
5.1.2 施工方面
不按设计文件或施工规范要求,偷工减料,粗制滥造,质量低劣等是其主要原因,表现为:
现浇混凝土楼板配合比达不到设计要求,抗渗能力低。
现浇混凝土楼振捣不密实,四周混凝土上翻高度不足,甚至没有上翻。
穿板管道周围堵洞不密实。
穿板管道漏设套管或套管高度不够。
防水材料不合格,涂刮铺贴不均匀,粘结不牢,局部漏铺等。
地面坡度不明显或地漏标高控制不严,地面积水等。
5.2 防治措施
5.2.1 设计方面
现浇混凝土强度等级不低于C20,四周设置上翻圈梁,高度不小于150mm,与现浇板一次浇筑。
防水材料选用耐老化、柔性好的复合防水涂料,四周上翻500mm,门口铺出300mm宽。
地面排水坡度不小于3%。
5.2.2 施工方面
管道施工:管道施工要认真核对图纸,依据图纸准确定位,严格控制卫生洁具出水口标高。
楼板堵洞:保证管道与孔洞边缘有30-50mm的缝隙,并清理掉松散碎碴,用厚度16-20mm木板制作模板,用14#铁丝吊紧在楼板下,然后集中搅拌豆石混凝土,掺3%膨胀剂,混凝土浇筑前将洞口湿润,浇筑时振捣密实,浇筑养护不小于7d。
找平层施工:找平层宜采用防水砂浆,沿墙角处应做不小于r=50mm圆弧,所有穿楼板管道根处应做不小r=50mm、高50mm的台墩。
防水层施工:建筑物卫生间涂刷防水涂料时,基层应干燥,聚氨脂底胶固化24h后进行防水深层施工,防水涂层每次涂涮厚度应控制在1~2mm,第二次涂刷方向应与第一次涂刷方向垂直,两道工序间歇时间宜为24h。
地漏、下水口涂膜应严格按操作规程要求施工,地漏、下水口管壁应清理干净,使涂膜粘贴牢固,并深入口内不小于50mm。
保护层施工:保护层施工时应避免破坏防水层,镶贴面层时坡度要严格控制,地面要平顺,排水通畅,地面成活后就砂空鼓、不开裂、嵌缝严密,不显接槎,墙角根部、背部和管子根部镶贴平整、不漏贴、套割严密。
试验:防水涂层施工完毕要做蓄水试验,蓄水深度在地面最高处应有20mm的积水,如有渗漏应立即返修,直到蓄水试验不渗漏为止,卫生间全部地面做完后,要做闭水试验。
5.3 设计优化做法
淋浴房挡水坎采用L型不锈钢板,用细石混凝土固定,涂刷防水涂料并完全覆盖挡板。
浴缸基础底部、侧墙做JS防水,能有效避免浴室渗漏。
厨房门坎采用一次浇筑成型,且必须插筋(间距200mm)。

