通车后隧道变形缝渗漏水快速维修
新技术措施
(陈森森、李康、刘文、陈禹、张一路、陈梦圆 南京康泰建筑灌浆科技有限公司,江苏 南京 210033)摘要:市政通车后隧道,汽车通行的时候会对隧道的结构有震动扰动和荷载扰动,原来隧道的变形缝会出现渗漏水的现象,影响行车的安全和结构的安全、以及结构的耐久性,需要利用夜间维修检查时间,快速维修变形缝,修复变形缝内止水带的功能,达到堵漏的目的。关键词:通车后隧道, 变形缝渗漏水, 快速维修, 新型材料, 新技术措施
以郑州市107辅道快速化工程(金水东路-商都路)东三环隧道为例,工程北起金水东路,南至商都路,主线采用双向八车道浅埋隧道形式,北侧敞开段位于金水东路以南107辅道上,隧道入地后平面线位向东偏至圃田西路下方,依次下穿七里河北路下方3m污水管、七里河、七里河南路下立交,上跨圃田西路下方人行通道、轨道交通1号线盾构区间、下穿商鼎路高架、莲湖路下立交后向西偏移至107辅道上后在商都路以北接地,全长2.79km,包含北段敞开段130.00m,南段敞开段149.60m,暗埋段2477.00m,隧道南北段各设置一对进出口匝道,结合隧道敞开段布置,地面辅道采用双向八车道地面道路形式,设计时速100公里。

通车6个月后出现了部分变形缝渗漏水,顶部和沥青路面都出现渗漏水现象。造成路面湿滑,影响了行车的安全,急需对变形缝渗漏水进行快速维修。
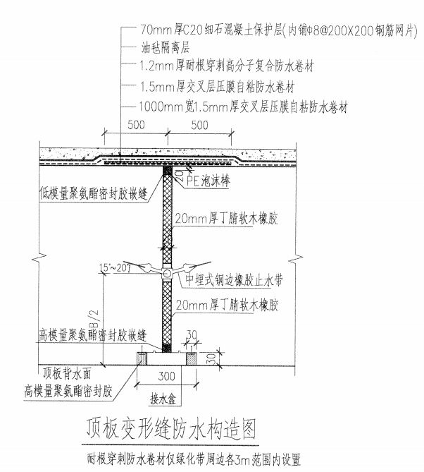
2.1、隧道变形缝的结构:




2.2、隧道防水等级标准:本隧道防水等级为地下二级,即不允许漏水,结构表面可有少量湿渍,总湿渍面积不大于总防水面积的2/1000,任意100㎡防水面积内的湿渍不超过3处,单个湿渍的最大面积不大于0.2㎡。平均渗漏量不大于0.05L/㎡•d,任意100㎡防水面积渗漏量不大于0.15L/㎡•d。地道结构采用防水混凝土,混凝土标高C40,抗渗等级P8,工程桩混凝土标高水下C35。
2.3、隧道原来防水设计原则:本隧道的防水设计遵循“防、排、截、堵相结合,刚柔相济,因地制宜,综合治理”的原则。确立钢筋混凝土结构自防水体系,即以结构自防水为根本,加强钢筋混凝土结构的抗裂、防渗能力,改善钢筋混凝土结构的工作环境,进一步提高其耐久性;同时以施工缝变形缝等接缝防水为重点,辅以附加防水层加强防水。
3.1、利用夜间车流量小,可以半幅通车半幅施工的情况下,在夜间22:00到次日凌晨6:00之间8个小时,需要快速对渗漏的变形缝维修。
3.2、利用夜间8小时的维修时间,需要确保第二天全隧道正常通车,不能因为施工而造成行车的安全隐患,需要及时恢复维修作业面拆除的装饰板和不能破坏沥青路面,需要采取快速维修的工艺和适合快速维修的材料。需要分步分次分序分几天进行快速维修。
3.3、新技术措施的核心原则:方案和施工遵循“以防为主、防、排、截、堵相结合,刚柔相济、多道防线、因地制宜、综合治理”的原则,材料复合、工法复合、工艺复合、设备组合等办法,恢复原来设计图中防水的设计理念,修复施工中的不足,弥补施工的缺陷,防水节点施工满足原来设计的要求,符合国家相关规范和要求、标准。
3.4、新技术措施的主要技术原理:隧道使用后,汽车通过的时候对结构有一定的震动扰动和荷载扰动,对此动态震动环境下地下结构变形缝渗漏水治理,要充分考虑材料的抗振动扰动性和耐久性,并且材料性能必须高于国家和行业现行标准要求。在抗震动扰动方面增加了高弹性高粘接力的填塞型环氧改性聚硫类防水密封膏、KT-CSS-9019,阳离子丁基改性液体橡胶,在灌浆材料的选择上采用耐潮湿低粘度改性有韧性的环氧树脂结构胶灌浆材料(符合国家行业标准《混凝土裂缝用环氧树脂灌浆材料》JC/T 1041-2007、《工程结构加固材料安全性鉴定技术规范》GB 50728-2011)、橡胶非固化灌浆材料和抗震动扰动比较好的结构加强的水泥基超细无收缩灌浆材料,水中不分散混凝土(符合国家标准《水泥基灌浆材料应用技术规范》GB/T 50448-2015)、聚合物砂浆(符合国家行业标准《聚合物水泥防水砂浆》JC/T 984-20
4.1、顶板及边墙变形缝施工工序:
4.1.1、清理变形缝,深度4-6cm,侧边扩宽0.5-1cm,槽内侧到新鲜坚实的基层,在变形缝两侧斜向变形缝钻孔,起到引流的作用,两侧斜向变形缝打孔,采用钻孔限位器(刻度),深度至结构1/2-2/3处相交,同时在变形缝中间垂直打孔,打穿中埋止水带,孔径12-16mm之间,间距10-15cm。再采用聚合物防水型修补砂浆将变形缝临时封闭,把水通过斜钻孔进行有序引流,把无序的水变成有序的水,把分散的水变成集中的水,安装上专用注浆嘴,形成密闭的空间,以便注胶的时候能达到恢复橡胶止水带功能的效果;采用专用的化学注浆机,在注浆嘴中灌注KT-CSS-9019,阳离子丁基改性液体橡胶,
此材料主要特点:
1、可以快速修复橡胶止水带功能,遇水快速反应,形成密封胶装的胶体。
2、延伸率达300%,
3、单组分可以遇水快速固化,10分钟内固化, 不发泡、微膨胀。
4、与基层粘接效果强,
5、环保无毒,性能稳定,进口原材料。
6、固含量达95%以上,
7、耐严寒、低温固化、抗盐分,
8、高科技新产品,适合地铁、高铁、高速公路、水电站、综合管廊等地下工程带水堵漏操作。
4.1.2、待材料固化后,灌注KT-CSS-9019,阳离子丁基改性液体橡胶,相当于现场制作橡胶止水带(橡胶止水带相当于预制成品的止水带,我们灌注的阳离子丁基改性液体橡胶相当于是现场浇筑的橡胶止水带,此材料为橡胶类密封胶,单组分材料,加热到50度的时候液化,常温的时候变成膏状的橡胶类密封胶,在有水的环境下与混凝土、钢板等材料粘接,立面不垂挂)。
4.1.3、在变形缝两侧斜打孔,打至中埋止水带位置,采用钻孔限位器(刻度),不打穿中埋止水带,安装注浆嘴,间距10-15cm, 采用KT-CSS控制灌浆工法,确保灌浆的效果,灌注高弹性耐潮湿改性环氧结构胶(KT-CSS-8,专利配方的弹性环氧,可以快速固化,固化时间在40分钟,延伸率在20%-25%),灌注进中埋止水带和混凝土之间的渗水通道;把原来止水带和结构之间的空隙填满弹性环氧胶,修复了止水带和结构之间完全粘接的功能。
4.1.4、待弹性环氧初步固化后,时间约50分钟,电镐和切割机拆除或凿除临时封闭变形缝的材料,深度为6cm,清理内部,打磨污染和锈蚀等到原来的基层,保持界面干燥、干净,涂刷改性环氧胶(KT-CSS-1016底涂,是一种界面剂材料,专利配方产品,可以快速在20分钟内初凝),用吹风机加热槽内温度,填塞非固化填塞型密封胶(KT-CSS-1019,专利配方类密封胶),采用棍棒捣实,将密封胶和槽内侧表面压实,确保材料完全与槽密贴,并且加热再压实和压密贴。再刷环氧类专用界面剂(KT-CSS-1016底涂,是一种界面剂材料,专利配方产品)在槽内侧,配制环氧改性聚硫密封胶,可以在40分钟固化,适合快速维修的需要,采用刮板涂刮,填平变形缝;
4.2、钻孔打穿主体结构,采用 Φ14mm 钻头,沿变形缝两侧,间距1米-2米左右,安装注浆嘴和闸阀,向壁后灌注超细的水泥基无收缩自流平自密实高强度灌浆材料,并且有2%左右的微膨胀率,其中掺入2%结构自防水母料添加剂、3%水泥基渗透结晶母料添加剂的混合灌浆材料,从下向上,从一侧向另外一侧,注浆压力控制在 0.2~0.3Mpa,最高不超过 0.5Mpa,充填背后存水空腔,这个空腔主要是拔出钢板桩等造成的存水空腔,把空腔水变成裂隙水,把压力水变成微压力水,把无序水变成有序水,把分散水变成集中水。
4.3、变形缝表面安装W钢带,W钢带双面用环氧改性聚硫密封胶涂刮厚度10mm,用膨胀螺丝固定钢带在变形缝两侧。同一条变形缝钢带与钢带之间,采用重叠50mm搭接,并环氧改性聚硫密封胶涂刮密封,安装集水盒时使用聚硫密封胶在集水盒内侧进行密封。
4.4、变形缝渗漏水治理现场施工示意图:




4.5、变形缝渗漏水快速维修施工现场:


4.5、此技术成功运用案例
沈阳市南北快速干道风雨坛明挖隧道变形缝渗漏水治理

5.1、KT-CSS-18改性环氧树脂结构胶
特点:1、耐水耐潮湿,混合后可以在水中40分钟快速固化,水中粘接,固化时间可以进行调整。市场上民用加固的环氧很难达到;2、能在0℃以上固化,能在潮湿和干燥界面施工;3、无溶剂,固化后不会因溶剂挥发后而收缩,固含量超过95%以上,市场上用丙酮稀释的环氧不能用。固化体系无有机溶剂释放,反应放热平稳,不易爆聚;4、环氧固化后有一定的韧性,延伸率在8%-10%之间,可以抗汽车或列车通行的时候对结构的震动扰动和荷载扰动,市场上环氧固化后是刚性的,无延伸率;5、低粘度,高渗透,可以灌进0.2mm的缝隙,我们的可以达到0.1mm的缝隙,利于堵漏效果。市场上环氧浓度大,只能灌进0.3-0.5mm的缝隙;6、固化后强度达C40-50,无需更高!市场上环氧是强度高达C60以上,与砼标号等级有偏差;7、我们通过实践,总结出来裂缝漏水灌环氧的工法(KT-CSS工法,己获得国家发明专利),可以使漏水裂缝灌浆饱满度达95%以上,加固规范要求只是达85%;8、目前环氧类材料是工程加固类的首选材料,抗压强度高,粘接强度好,不容易水,地下工程无紫外线,不会有造成环氧材料的老化的环境,这样环氧类材料的耐久性就比较好,目前在港珠澳大桥的裂缝修补都采用改性环氧灌浆材料,材料必须性能指标符合《混凝土裂缝用环氧树脂灌浆材料》JC/T 1041-2007标准的要求。
KT-CSS-18改性环氧树脂结构胶主要技术指标
环氧树脂结构胶力学强度

5.2、KT-CSS系列特种水泥基灌浆材料
(1)KT-CSS系列水中不分散灌浆料
材料性能要求:1、高抗分散性。可不排水施工,即使受到水的冲刷作用,也能使在水下浇筑的水下不分散混凝土不分散、不离析、水泥不流失;2、优良的施工性。水下不分散混凝土虽然粘性大,但富于塑性,有良好的流动性,浇筑到指定位置能自流平、自密实;3、适应性强。新拌水下不分散混凝土可用不同的施工方法进行浇筑,并可通过各种外加剂的复配,满足不同施工性能的要求;4、不泌水、不产生浮浆,凝结时间略延长;5、安全环保性好。掺加的絮凝剂经卫生检疫部门检测,对人体无毒无害,可用于饮用水工程,新拌水下不分散混凝土在浇筑施工时,对施工水域无污染;6、此水泥基灌浆材料,与水泥性能基本相同,耐久性与水泥基本一致,高于化学类浆液。
KT-CSS系列水中不分散灌浆料主要性能指标表
按水料比0.6加水搅拌均匀后性能指标

5.3、KT-CSS系列特种聚合物胶水材料(阳离子丁基丙乳砂浆)(符合《聚合物水泥防水砂浆》JC/T 984-2011标准)材料性能:1、防水、防渗、抗裂、粘结、抗冻、抗老化性能;2、抗水渗透性比普通砂浆提高3倍以上;3、无毒、无害、无环境污染;4、施工方便;5、适合于潮湿面粘结;6、材料性能必须要符合国家行业标准《聚合物水泥防水砂浆》JC/T 984-2011。
KT-CSS系列特种聚合物胶性能指标表
5.4、 KT-CSS系列非固化橡胶类材料
材料性能:1、永不固化,固含量大于99%,施工后始终保持原有的弹塑性状态。2、粘结性强,可在潮湿基面施工,也可带水堵漏作业,与任何异物保持粘结。3、柔韧性好,对基层变形、开裂适应性强,在变形缝处使用优势明显。4、自愈性好。施工时材料不会分离,可形成稳定、整体无缝的防水层。施工及使用过程中即使出现防水层破损也能自行修复,阻止水在防水层后面流窜,保持防水层的连续性。5、无毒、无味、无污染,耐久、防腐、耐高低温。6、施工简便,可在常温和0℃以下施工。
KT-CSS系列非固化橡胶类材料性能指标
5.5、KT-CSS-9019,阳离子丁基改性液体橡胶,

六、结束语:
利用新材料和新工艺的相结合的新技术措施,对通车后隧道变形缝渗漏水进行了成功的快速维修,恢复了原来变形缝设计的防水要求,实现快速维修的目的,高效、快捷地完成了通车后隧道变形缝渗漏水快速整治的任务要求,并且成功运用到沈阳南北快速干道风雨坛隧道的通车后的变形缝快速维修,为类似地下工程变形缝渗漏水快速维修提供了新技术措施,新材料、新工艺、新技术相结合,是个永恒的发展和创新历程,灌浆材料、灌浆工艺也层出不穷,随着变形缝堵漏技术的发展,努力探索,勇于创新,可以解决好更多复杂的地下工程变形缝渗漏水快速整治的难题。

