1、基坑侧边防水卷材铺贴要求
基坑侧边及距坡顶、坡底800mm宽度范围内防水卷材必须实铺。
2、后浇带超前止水构造做法
①沉降后浇带均采用超前止水构造;
②先浇筑超前止水构造的砼,再浇筑底板砼;
③底板砼浇筑前应对先浇筑的砼表面凿毛处理;
④超前止水伸缩缝下增设500 宽防水附加层;
3、导墙止水钢板焊接及阴阳角位置做法
①止水钢板搭接处需要双面紧贴满焊,搭接长度为100mm。
②阴阳角处的止水钢板采用整块板弯折后贯通。
③止水钢板搭接位置距离转角不应小于300mm。
4、止水钢板穿柱、梁部位的箍筋加固方法
①当止水钢板需穿过柱子和梁箍筋时,此箍筋应使用开口箍,与止水钢板进行焊接。
②单面焊接长度不小于10d 且不允许将止水钢板焊穿。
5、止水螺杆的质量要求
①双面焊接饱满;
②无砂眼、无夹渣、无漏焊;
③螺栓直径d 不应小于14mm;
④止水环厚度3mm;
6、地下室外墙止水螺杆端部处理方法
①取下锥形螺套。
②聚合物水泥砂浆封堵。
③做防水附加层。
7、地下室外墙采用脱卸式止水螺杆
①内杆加工尺寸必须准确。
②锥形螺套控制外墙尺寸。
③钢制大模板穿墙螺栓采用图一。
④木模穿墙螺栓采用图二。

8、外墙抗渗与非抗渗混凝土交接位置处理方法
①地下室墙体混凝土浇筑时,应在内墙距外墙200mm 位置设置竖向通长钢丝网,拦截抗渗混凝土。
②待外墙抗渗混凝土浇筑完成后再浇筑内墙混凝土。
9、地下室外墙根部防水做法
①转角位置做50mm 圆弧。
②转角、变形缝、施工缝、管根处做防水附加层,宽度不小于500mm。
③立面防水卷材搭接宽度不小于150mm。
④相连卷材接头应错开不小于500mm。
⑤上下两层和相邻两幅卷材的接缝应错开1/2 幅宽且两层卷材不得垂直铺贴。
10、出墙群管管根做法
①出墙群管管根应设置混凝土墩台,与外墙混凝土同时浇筑,外侧群管外皮距墩台外边混凝土不小于200mm。
②群管横竖向净间距不小于100mm。
③群管端头采用钢板临时封堵时,钢板不应超出管边,以便正面模板安装。
④墩台内侧应设置模板定位支架,保证墩台浇筑尺寸。
⑤墩台外侧模板采用钢管加固。
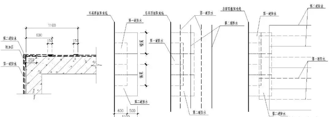
11、车库顶板阳角防水节点
①阳角防水附加层宽度不小于500mm。
②立面与平面转角处,卷材接头应留在平面上,距立面不小于600mm。
③立墙与平面防水卷材的搭接宽度均不小于150mm。
12、外墙卷材防水收头做法
①地下墙体收头部位应高出设计室外地坪500mm。在未到500 高度即遇门窗洞口时,防水转入洞口。
②收头部位使用使用密封膏密封。
③防水收头方式应根据工程实际情况进行。
13、外墙防水卷材保护措施
①外墙防水分段验收合格后,采用50mm 厚模塑聚苯板进行保护。
②保温板采用聚合物砂浆进行粘贴,粘结面积不小于10%。

