防水卷材在工厂预制成型,具有固定厚度。但出厂时还是“半成品”,需要在工地现场通过一定的施工工艺铺设在基层,最终形成连续的、交圈的封闭防水层。片状的防水材料在现场铺贴需要对长边、短边进行接缝处理,然后确保防水层形成整体。“细节决定成败”,在繁荣而不光荣的防水行业,细节往往差强人意。这些搭接缝(拼接缝)的宽度是多少?搭接缝(拼接缝)的施工又有哪些注意事项呢?
★
1、防水卷材接缝一般要求
★
2.1屋面防水工程搭接缝要求
2.1.1顺流水方向
平行屋脊的搭接缝应顺流水方向,搭接缝宽度符合要求。
顺流水方向可以形象理解为靠上一层的卷材边压住下一侧的卷材边,也就是雨水可以顺着搭接缝顺势而下,不会倒灌流入搭接缝中。
顺流水方向示意图
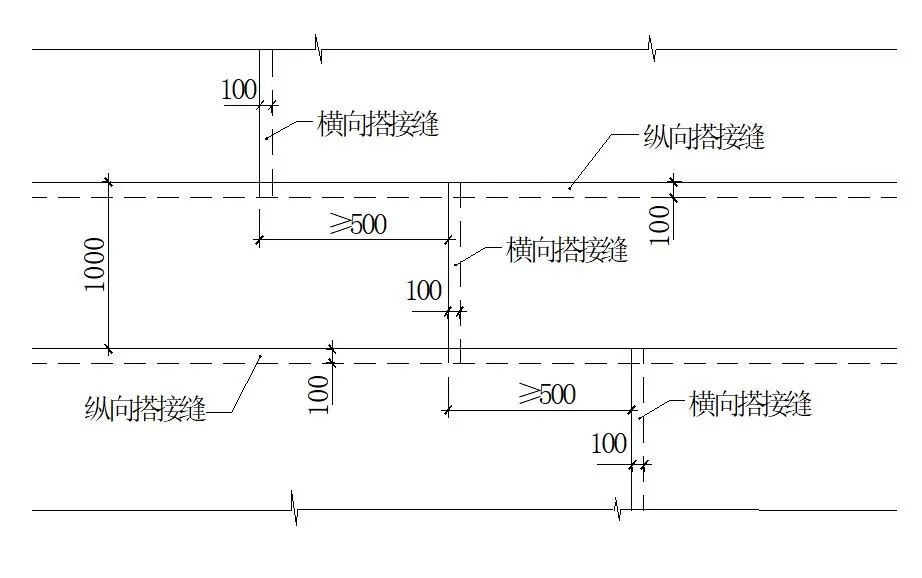
2.1.2错缝铺贴
错缝错缝就是为了避免拼缝集中,大量集中的拼缝形成巨大的渗漏隐患。
同一层相邻两幅卷材短边搭接缝错开不应小于500mm;
单层防水卷材铺贴平面示意图
2.1.3 T型缝处理
在每一个短边与长边的交接处形成了一个T型缝,施工时这里能达到三层防水卷材搭接T型缝是施工难点,有如下的施工工艺要求:
(1)剪角处理。
为了表面平整不至于过于起鼓,宜对中间一层卷材在搭接部位剪角处理。
A热熔法施工的改性沥青防水卷材,中间一层在搭接部位宜做45°剪角,卷材竖直边剪角长度宜为80mm。
B冷自粘施工的无胎自粘改性沥青防水卷材,宜采取45°剪角。
C合成高分子防水卷材焊接时应剪角并减薄,必要时可覆盖补丁。
剪角处理我估计10个施工队有9个半不会这样做,他们的理由是给什么样的钱干什么样的活,一时间是反驳不了的。他们的口号是,能不做就不做,老板要挣钱。所以说这个行业的原罪感还是很强。都忙着玩资本,玩技术的不多。看看如今的保温行业就知道,如果不好好整顿,很多保温系统是逐渐没有活路,因为他要老百姓的命。
双层铺贴时,上下层卷材长边搭接缝应错开,且不应小于幅宽的1/3
防水卷材双层铺贴示意图
注:T型缝处理也适用于地下防水工程。
2.1.4叉接法搭接
叠层铺贴的各层卷材,在天沟与屋面交接处,应采用叉接法搭接,搭接缝应错开;搭接缝应留在屋面与天沟侧面,不宜留在沟底。
叉接法搭接就是说搭接缝错开。搭接缝应留在屋面或天沟侧面,搭接缝不在一条直线上。
天沟与屋面交界处这样的搭接渗漏风险大吗?
中一是天沟沟底有大量的搭接缝,如果平行屋脊铺贴会减少接缝。二是屋面与天沟处防水卷材平行于屋脊的接缝没有错开叉接。
2.2地下防水工程搭接缝要求
卷材搭接处和接头部位应粘结牢固,接缝口应封严或采用材性相容的密封材料封缝。
铺贴双层卷材时,上下两层和相邻两幅卷材的接缝应错开1/3~1/2幅宽,且两层卷材不应相互垂直铺贴。
关于侧墙部位的搭接也要遵循顺流水方向。
对于外防外贴民用建筑而言,外防外贴侧墙防水施工,卷材贴在侧墙上,铺贴顺序是由下往上依次铺贴,卷材接缝处是上部卷材压住下部卷材,这样在迎水面形成顺水流方向搭接,还有一个好处就是如果卷材顶端用了金属压条固定,上部卷材可以搭接下来盖住金属压条。说起来绕口如下图所示:
外防外贴法侧墙施工顺水流方向搭接
注:图中卷材搭接宽度按100mm示意。机械固定的金属压条距离卷材边缘在10~20mm之间。
侧墙金属压条固定施工图(网络图片)
矿山法隧道防水层(预铺反粘法工艺)整体交圈示意图
矿山法隧道防水卷材铺设方向示意图
铺设顺序:宜从顶拱向两侧展铺,边铺边用压焊机将防水层与暗钉圈焊接牢固。焊接宽度用于地下管廊等部位时≥100mm。下部防水卷材压住上部防水卷材,在迎水面形成顺流水方向搭接。
矿山法隧道立面防水卷材搭接示意图
立面高分子防水卷材暗钉圈焊接示意图
预铺反粘法施工的HDPE防水卷材防水示意图(白色为HDPE防水卷材)(网络图片)
★
2、搭接缝(拼接缝)宽度要求
★
3.1改性沥青防水卷材
改性沥青防水卷材,一般采用热熔法施工。
防水卷材接缝应采用搭接缝。
地下工程搭接宽度100mm;
屋面工程:搭接100mm(胶粘剂)。屋面写胶粘剂是与自粘搭接区分;
管廊、隧道:搭接100mm。
为了防止现场工人搭接宽度不够,便于施工监管,往往在卷材一面出厂时就印有搭接宽度参考标志虚线,按此标志线施工即可满足搭接宽度要求。
图片
搭接示意图(网络图片)
搭接宽度现场检查(符合要求)
搭接宽度现场检查-不符合(网络图片)
足够的搭接宽度能延长渗水路线,减少渗漏隐患。除了对宽度做要求,热熔法施工还对接缝的处理做出规定:
搭接部位在烘烤过程中应溢出热熔沥青。就是要将搭接边烤出“油”(改性沥青胶结料)来。溢出的改性沥青胶结料宽度宜为8mm(GB50345),或≥5mm(19J302图集)。
卷材搭接现场图片
3.2自粘聚合物改性沥青防水卷材
这类卷材(干铺法施工、湿铺法施工)搭接宽度为80mm。防水卷材本身会预留搭接边,施工时揭开防粘隔离膜,二者相互粘合即可。如遇温度较低,宜对卷材用热风机适当加热,加热后随即粘贴牢固。
屋面自粘防水卷材施工现场图片
3.3高分子自粘胶膜防水卷材
高分子自粘胶膜防水卷材长边为预留规定宽度胶粘带,揭开就可将相邻卷材粘贴到一起。短边有两种方法,可采用双面自粘胶带搭接,或单面自粘胶带对接。
依据GB50108 长边搭接处为预留自粘胶时,搭接宽度≥70mm,短边既可采用搭接≥80mm,也可采用对接。GB50108没有明确规定若采用对接的单面自粘胶带的宽度。
图集19J302,详细规定,当高分子自粘胶膜防水卷材采用自粘胶时,搭接宽度70mm,当采用热风焊接时,搭接宽度80mm;采用胶粘带对接时,搭接宽度120mm。
防水卷材长边预留自粘搭接边(一般建筑宽度70mm,地下管廊80mm)
防水卷材短边对接现场图
其余品类防水卷材搭接缝宽度要求,详见相关规范。
防水卷材接缝处理非常重要。举例,如果耐根防水卷材卷材接缝不严密,就会导致植物根系穿刺形成渗漏。接缝处理不当,防水层局部失效,漏不漏就只能看天意了。

