防水工程按其构造做法分为结构自防水和柔性防水两大类 。结构防水,主要是依靠结构构件材料自身的密实性及其某些构造措施(坡度、埋设止水带等),使结构构件起到防水作用。
广东洪实公司对防水工程分解:柔性防水,是在结构主体的迎水面或背水面以及接缝处,附加防水材料做成防水层,以起到防水作用,如卷材防水、涂料防水、刚性材料防水层防水等。
1、地下防水工程的防水层,严禁在雨天、雪天和五级风及其以上时施工。
雨天施工会使基层含水率增大,导致防水层粘结不牢;气温过低时铺贴卷材,易出现开卷时卷材发硬、脆裂,严重影响防水层质量;低温涂刷涂料,涂层易受冻且不成膜;五级风以上进行防水层施工操作,难以确保防水层质量和人身安全。

雨天施工会使基层含水率增大,导致防水层粘结不牢
气温过低时铺贴卷材,易出现开卷时卷材发硬、脆裂,严重影响防水层质量
2、防水混凝土的变形缝、施工缝、后浇带、穿墙管道、埋设件等设置和构造,均需符合设计要求,严禁有渗漏。

3、砼在浇筑地点的坍落度,每工作班至少检查两次。
4、连续浇筑砼每500m3应留一组抗渗试件(一组为6个抗渗试件),且每项工程不得少于两组。采用预拌砼的抗渗试件,留置组数应视结构规模和要求而定。

5、水泥砂浆防水层表面应密实、平整,不得有裂纹、起砂、麻面等缺陷;阴阳角应做成园弧形。

6、防水砼结构的变形缝、施工缝、后浇带等细部构造,应采用止水带、遇水膨胀橡胶腻子止水条等高分子防水材料和接缝密封材料。


7、变形缝构造图(一)

8、变形缝构造图(二)

9、变形缝构造图(三)

10、变形缝构造图(四)

11、变形缝构造要求
1)、止水带宽度和材质的物理性能均应符合设计要求,且无裂缝和气泡;接头应采用热接,不得叠接,接缝平整、牢固,不得有裂口和脱胶现象;
2)、中埋式止水带中心线应和变形缝中心线重合,止水带不得穿孔或用铁钉固定;

3)、变形缝设置中埋式止水带时,砼浇筑前应校正止水带位置,表面清理干净,止水带损坏处应修补;顶、底板止水带的下侧砼应振捣密实,边墙止水外侧砼应均匀,保持止水带位置正确、平整无卷曲现象。
4)、水平施工缝浇筑砼前,应将其表面浮浆和杂物清除,铺水泥砂浆或涂刷砼界面处理剂并及时浇筑砼;
5)、垂直施工缝浇筑砼前,应将其表面清理干净,涂刷砼界面处理剂并及时浇筑砼;
6)、施工缝采用遇水膨胀橡胶腻子止水条时,应将止水条牢固地安装在缝表面预留槽内;

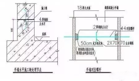
12、墙体留置施工缝时,一般应留在受剪力或弯矩较小处,水平施工缝应高出底板300mm处;拱(板)墙结合的水平施工缝,宜留在拱(板)墙接缝线以下0~300mm处。
施工缝处采用遇水膨胀橡胶腻子止水条时,一是应采取表面涂缓膨胀剂措施,防止由于降雨或施工用水等使止水条过早膨胀;二是应将止水条牢固地安装有缝表面预留槽内。


水平施工缝应高出底板300mm处
13、防水后浇带施工
1)、后浇带应在其两侧砼龄期达到42d后再施工;
2)、后浇带应采用补偿收缩砼,其强度等级不得低于两侧砼;
3)、后浇带砼养护时间不得少于28d。

14、后浇带构造图(一)

15、后浇带构造图(二)

16、穿墙管道的防水施工
1)、穿墙管止水环与主管或翼环与套管应连续满焊,并做好防腐处理;
2)、穿墙管处防水层施工前,应将套管内表面清理干净;
3)、套管内的管道安装完毕后,应在两管间嵌入内衬填料,端部用密封材料填缝。柔性穿墙时,穿墙内侧应用法兰压紧;

17、埋设件的防水施工
1)、埋设件端部或预留孔(槽)底部的砼厚度不得小于200mm;当厚度小于250mm时,必须局部加厚或采取其他防水措施;
2)、预留地坑、孔洞、沟槽内的防水层,应与孔(槽)外的结构防水层保持连续;
3)、固定模板用的螺栓必须穿过砼结构时螺栓或套管应满焊止水环或翼环;采用工具式螺栓或螺栓加堵头做法,折模后应采用加强防水措施将留下的凹槽封堵密实。

埋设件端部或预留孔(槽)底部的砼厚度不得小于200mm
固定模板用的螺栓必须穿过砼结构时螺栓或套管应满焊止水环或翼环
18、地下室顶板在室外地坪之下



卷材防水搭接宽度
基层阴阳角应做成圆弧或45°坡角,其尺寸应根据卷材品种确定;在转角处、变形缝、施工缝,穿墙管等部位应铺贴卷材加强层,加强层宽度宜为300mm~500mm。
19、卷材接缝
铺贴双层卷材时,上下两层和相邻两幅卷材的接缝应错开1/3~1/2幅宽,且两层卷材不得相互垂直铺贴。(单层卷材铺贴时相邻两幅卷材的接缝也应错开1/3~1/2幅宽)


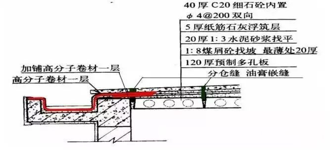
20、建筑屋面防水构造
1)、卷材防水——改性沥青卷材、高分子化合物卷材
2)、刚性材料防水——防水砂浆和防水细石混凝土
3)、涂膜防水 ——水泥基涂料、合成高分子涂料、高聚物改性沥青防水涂料、沥青基防水涂料等
21、卷材防水屋面女儿墙檐口构造

22、分仓缝作用及构造
用来找坡和找平的轻混凝土和水泥砂浆都是刚性材料,在变形应力的作用下,如果不经处理,不可避免地都会出现裂缝,尤其是会出现在变形的敏感部位。这样容易造成粘贴在上面的防水卷材的破裂。所以应当在屋面板的支座处、板缝间和屋面檐口附近这些变形敏感的部位,预先将用刚性材料所做的构造层次作人为的分割,即预留分仓缝。即便屋面的构成为现浇整体式的钢筋混凝土,也应在距离檐口500mm的范围内,以及屋面纵横不超过6000mm×6000mm的间距内,作预留分仓缝的处理。分仓缝宽约10~30mm,中间应用柔性材料及建筑密封膏嵌缝


找平层宜设分格缝,并嵌填密封材料。
23、防水卷材收头做法


24、卷材收口做法

25、屋面有突出物处防水做法

26、刚性防水屋面挑檐檐口节点

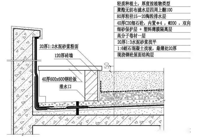
27、种植屋面做法



