随着经济的发展和生活质量的提高,越来越多的农村人开始住上了自己的小楼房。但是建一栋新楼房,就需要拆掉原来的房子,不仅费时,更费钱。
对于普通的农村家庭来说,负担确实有些重。因此,加层、扩建的确是一个经济实惠的好办法。
但是农村自建房,真的是拆了屋顶直接往上加层就可以的吗?多起农村自建房坍塌事故,建筑结构如何才能安全?

随意加层,扩建是农村自建房坍塌事故发生的主要原因之一。
那加层和扩建时,应该注意哪些关键点,可以省钱又安全?
评估地质
确保老房的基础完整无缺陷,地质条件稳定,无明显沉降,钢筋混凝土基础最好,砖基础必须进行加固。
如果地基深度在1.2m以上的2-3层建筑,可以增加1层等高加层。地基深度在1.8m以上,可以增加2层等高加层。如果增加高度或者层数超过规范要求,下层墙体、立柱会因为承受的压力过大,发生倾斜变形,甚至坍塌。
所以,是否能加层主要看基础。如果基础不好,又有哪些基础的地基加固方法?

基础加固法
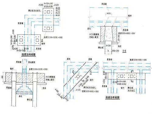
打桩法
在建筑基础附近钻孔,孔深为基础深度的2倍以上,并向孔内灌入加固材料,使基础周边土质坚固。通常,桩孔内灌入的材料一般有石灰、水泥浆、碱液等,灌入时要根据地质情况搭配砂石、土壤等料。

打桩加固时一般采用碱性化学材料,该施工方法不适用于水井、耕地附近,如果要使用,需要保持10m以上间距,防止污染。打桩法一般用于含水率较高的基础土层,尤其是受淤泥土层影响导致的基础沉降,对于其他外力导致的基础损坏,例如地震和滑坡作用不大。
加宽法
在建筑原基础的外围增加钢筋混凝土构造,新增的构造通过钢筋与原基础紧密相连。适用于原基础过窄、过小的建筑。


抬梁法
在损坏基础的地圈梁下方制作一个与地圈梁垂直的短梁,并在原基础两侧下部制作新基础,将短梁抬起,原地圈梁落在短梁上,短梁落在新基础上,从而加大原基础的承载体积,从而加固基础。
抬梁法是倾向于修补的加固方式,一般在损坏部位施工,如果要对条形基础进行整体加固,可以在距离主墙角100mm左右的位置开始施工。
围套法
在损坏或需加层的建筑基础外围制作一层钢筋混凝土围套,提高基础强度,常应用于住宅加层。




施工注意事项
1、避免使用过粗、过大、过重的结构材料。
2、加层时应尽量利用原结构。
3、加层层高不能超过原住宅顶楼层高,加层楼层室内空间高度不大于2.8m。
自建房加层、扩建,严格按照规范操作,才能经济实惠又安全。
备注:图片来源于网络。

