屋面防水工程怎么做?看了这个实例示范就非常清楚了!本工程为住宅工程,屋面防水工程为3厚SBS自粘聚合物改性沥青聚酯胎体防水卷材两道;40厚C20细石混凝土保护层内配Φ6@150双向钢筋。
屋面防水工序与步骤
屋面防水工程的详细示范
简直是手把手演示
▼
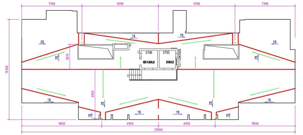
屋面防水样板策划
根据屋面工程作法确定样板施工样式,屋面排水坡度,画出屋面策划示意图。本建筑物总长33.56米,总宽度13.34米,总体南北向排水,坡度2%,东西向排水坡度1%,屋面共设排水口4只,其中北侧两只为侧排雨落水口,南侧两只下排雨落水口。
屋面策划示意图
屋面排水坡度示意详图
材料进场四方验收
材料进场经过甲方、监理、施工单位及供货商四方共同检查并验收合格。
四方检查验收
材料存放
根据现场实际进度情况,按不大于10000平方米为一个验收批原则,划分为两个验收批分别进行复试。防水卷材合理利用各栋楼顶层室内储存,阴凉透风,室温不高于40度,有效避免了雨淋、暴晒,且垂直堆放,高度不超过两层。

合理利用楼层储存
材料取样
防水材料经甲方、监理见证现场取样(分别端部截取2500mm后再顺纵截取2000mm长试样3块)送检,并检测合格。
现场见证取样
人员进场
工人及施工班组进场,首先进行三级教育和安全交底,合格后方可上岗施工。全面执行三级技术交底制度(图纸交底、方案交底、分项技术交底),对施工班组召开防水技术质量标准交底专题会。
施工流程
1-基层处理
基层在找坡施工前清扫干净,不得有建筑垃圾及其他任何杂物。
2-标志制作
标志灰饼制作按图纸设计坡度制作,采用水准仪等工具严格施工、复核,允许偏差小于3mm。
3-泡沫砼找坡
泡沫砼采用整体浇筑工艺,厚度超过100mm分层施工。面层采用3米长刮尺刮平后用铁板抹平压光。纵向坡度2%,横向坡度1%。最薄处30厚,最高处180厚,坡度正确,表面平整,表面平整度允许偏差不大于7mm。
4-找平层
找平层采用20厚1:3水泥砂浆。找平层浇筑后及时抹压密实并收光。一次机械,二次人工铁板收光,无酥松、起砂、起皮的现象,表面平整度允许偏差不大于5mm。
5-细部构造处理
卷材防水层的基层与突出屋面结构的交接处,以及基层处理的转角处做成半径不小于50mm圆弧状,且整齐平顺。
与墙体交接部位的圆弧制作
出屋面管道根部圆弧制作
6-烟道部位加强处理
烟道等与屋面交接部位采用聚乙烯丙纶高分子防水卷材和防水涂料做基层防水加强处理。
聚乙烯丙纶高分子防水卷材
烟道等部位的防水加强处理
7-结构盛水试验
基层处理完成后及时做盛水试验,水深50mm以上,盛水48小时。
8-渗水处理
盛水试验后发现有两处渗水,经及时板下压密注浆、板上增做聚乙烯丙纶高分子防水卷材和防水涂料强化处理后再做此范围的盛水试验,达到无渗水现象。
9-冷底油涂刷
在铺贴防水层前在基层上均匀涂刷冷底油,采用喷涂的方法,喷涂厚薄均匀,不存在漏底和堆积的现象。
10-附加层材料裁剪
管理人员现场示范指导阴阳角附加层部位卷材剪裁。
卷材必须在模板上剪裁
11-附加层施工


12-阴阳角施工
阴阳角部位严格按照规范及质量技术交底施工制作。

材料剪裁

完成效果
14-水落口
防水层及附加层伸入水落口杯内不应小于50mm,并粘贴牢固。

15-出屋面管道细部处理

16-出屋面管道卷材金属箍收头
17-第一道卷材预加热处理
火焰加热角度30~45度
18-第一道卷材施工
基层含水率经测试小于9%(采用1㎡的卷材覆盖在找平层上,静止平放3 小时,用手掀开后查看卷材与基层接触面无水印)后方大面积施工,卷材搭接缝顺流水方向铺贴,搭接缝弹线控制。


19-第二道卷材施工
上下卷材平行铺贴,第二道卷材与第一道卷材搭接宽度不小于卷材幅宽的三分之一 ,相邻两幅卷材短边搭接错缝大于500,卷材搭接缝顺流水方向铺贴。
20-卷材搭接
防水卷材的搭接满足规范要求,不小于8cm。
21-女儿墙


22-女儿墙镀锌防水金属压条收头
23-阳角面层加强
阳角是防水层最易被破坏部位,容易产生渗漏,面层作加强处理。
24-无动力风帽
改进无动力风帽安装方式,采用整体全覆盖底座,自然坡度大于3%。封闭安装,减少渗漏机会。

成品不锈钢整体盖板
25-盛水试验
卷材施工完成之后,做48小时盛水试验检查,盛水深度50~80mm,未发现渗水现象。
26-三方验收合格
由业主、监理和施工单位三方共同对屋面防水层进行专项验收,一次性通过验收合格。
图片
保温层及保护层
泡沫玻璃保温板与砂浆隔离层
保温层采用300×300×95泡沫玻璃板,面层10厚低标号砂浆隔离层。

设置通气管
保护层钢筋安装
屋面40厚C20细石砼防水保护层,内配Φ6@150双向钢筋置于中上部,钢筋垫块20厚,绑扎规范,间距正确。
防水砼保护层


分隔缝
严格按照图纸与规范要求设置保护层分格缝,分格缝间距不大于6m,缝宽20mm,采用20×40成品塑料分格条,C20细石砼60度角固定(下部弹线控制坡度,上口带线控制平直度),施胶前采用塑料盖板保护,沿女儿墙侧缝宽30mm。分格缝内填。

